这种“碳正”住宅全年运行只需70美元

Core 9家
广告

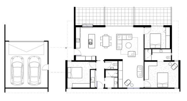
澳大利亚建筑工作室Beaumont Concepts建造了一座时尚、经济实惠的碳排放住宅。它位于维多利亚州的海滨小镇帕特森角。Core 9住宅原型旨在提供更好的住房解决方案,不仅具有成本效益,而且非常可持续。Core 9住宅是Cape的一部分,它是澳大利亚第一个可持续住房项目之一。它拥有220块土地,居民可以在那里建造符合特定可持续住宅设计标准的房屋。

博蒙特概念公司发表声明说,“随着能源成本的上升和保护宝贵资源的需要,可持续发展的住宅正成为一个非常可取的和更经济的长期选择。为了应对这一挑战并展示如何实现这一目标,在Cape建造了CORE 9原型机。CORE 9集成了可持续材料和低隐含能量。”Core 9原型是一个131平方米的家庭住宅。它有一个现代化的厨房,开放式的客厅和餐厅,三间卧室,两间浴室,室外露台,以及一个可停放两辆车的车库。住宅的设计使它能够获得最大限度的来自北方的自然光,以及一整天的交叉通风。

住宅内部有大的落地窗,抛光的混凝土地板和内置的木质家具。它使用了再生砖,住宅也有一系列裸露的砖墙,与住宅的木质面板天花板和白色饰面形成对比。该公司表示,“我们坚信,无论预算如何,每个想要建造自己家园的人都应该拥有良好的设计原则。为此,我们创造了一个建筑规模,允许建筑适应6星到10星之间的任何星级。”

该住宅采用了零浪费的理念。它利用了回收和升级回收的材料,同时还采用了一种产生最少废料和废物的建筑工艺。家庭建筑材料也被选择为高质量,耐用性和长寿命。Core 9住宅还使用太阳能热水系统,具有雨水收集和太阳能发电功能。房子的屋顶安装了一系列光伏电池板,据估计,全年运行的能源成本将在69美元左右。

Beaumont Concepts说,“通过使用环保建筑产品,我们减少了建筑对环境的影响。在一些家庭中,用于获得高星级的产品对环境有有害的影响。但在CORE家居中,无论星级如何,指定的产品都是环保的。建筑材料的选择也确保了最少的维护和寿命。”

广告

留下回复

你的电邮地址将不会公布。必填字段已标记*