你能想象这个小小的三角形房子从里面看是什么样子吗?

小三角房子里有惊喜
广告

本文所介绍的房子面积为594平方公里。它只是为了利用三角形的地块而建造的。从外面看,人们想知道怎么会有人能住在这房子里。一旦你走进这座令人惊叹的房子,你就会意识到空间被巧妙地利用了,房子是多么宜居和实用。看看下面这个小房子的细节。

这里的外面看起来很窄,不适合居住!小三角房子里有惊喜

不过一旦你走进去……小三角房子里有惊喜

你还觉得它太窄了吗?小三角房子里有惊喜

拉开窗帘,你就有了卧室!小三角房子里有惊喜

阁楼区域在小房子中起着至关重要的作用!小三角房子里有惊喜

功能性存储大有用处!小三角房子里有惊喜

厨房是根据场地的角度建造的!小三角房子里有惊喜

阁楼可兼作孩子们的娱乐室。小三角房子里有惊喜

从阁楼上看厨房的样子。小三角房子里有惊喜

浴室非常棒!小三角房子里有惊喜

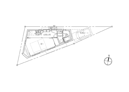
这是平面图。小三角房子里有惊喜

这种设计确保你能呼吸到新鲜空气。小三角房子里有惊喜

功能性是小房子的核心!小三角房子里有惊喜

你能相信这个小房子里装了多少东西吗?小三角房子里有惊喜

窗户给人一种通风和宽敞的感觉!小三角房子里有惊喜

这房子能装这么多东西,真令人难以置信。这的确是一项了不起的工程!小三角房子里有惊喜

广告

2的评论

留下回复

你的电邮地址将不会公布。必填字段已标记