聪明的建筑设计使这座小房子比您的家更宽敞

日本纳达的狭窄房屋
广告

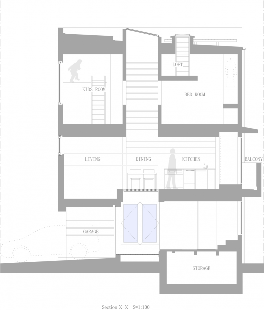
随着世界人口的增加,我们的主要城市变得越来越密集。日本是面临由于人口众多和空间有限的问题的国家之一。这就是为什么藤拉美(Fujiwarramuro)建筑师在日本纳达(Nada)仅36.95平方米的地块上创建了一栋房屋的原因。该项目建筑师Shintaro Fujiwara和Yoshio Muro使用了令人难以置信的智能布局,使有限的空间成为功能性的住所。房子利用空间轻松有效地利用空间来使狭窄的房屋看起来更宽敞,并防止居民感到箱子。房子的图片可以在下面看到。

外面的房子比周围的住所明显窄

内部布局从正面看到

从侧面看到的狭窄房屋的布局

房子用中央灯很好地创造了空间的幻想

地板上使用的板条,排水板使光线可以到达房屋的较低层

房屋中的开口和孔消除了被困在狭窄空间中的感觉

开放布局提供了足够的空间来舒适地生活

房子里没有光线或黑暗的角落

房子里的一间卧室

明智地使用角落和缝隙使房屋成为功能性的家

广告

3条评论

  1. 内而外的体系结构 回复

    有趣的设计,充分利用空间。属性的面部与内部特征不完全匹配。但是,对于有限的空间,我想很难补充内部和外部功能。有了孩子,这个财产代表多长时间?

发表评论

您的电子邮件地址不会被公开。